Thursday, January 5, 2012

Gunter Sach's Estate To Unload A Rare Paul Rudolph Residence in New York City

SELLER: Estate of (Fritz) Gunter Sachs
LOCATION: New York City, NY
PRICE: $38,500,000
SIZE: (approximately) 10,000 square feet, 4 bedrooms, 4.5 bathrooms

YOUR MAMAS NOTES: True confession: our incessant (re)search into the real estate activities of celebrities sometimes gets dull and we end up gathering wool with our own real estate fantasies and touch stones. We're not complaining, we're just saying a job is a job and sometimes it's nice to mentally escape into our own real estate desires. Thing is, ask anyone who knows Your Mama well and they'll (probably) sigh with exhaustion then tell you our (probably too frequent) personal real estate meanderings often border on a (probably) unhealthy obsession that funnels us directly into time consuming black holes of real estate fantasy. Our latest and very powerful property preoccupations are a positively puny but colorful two-room garret with a damn near microscopic balcony on the Rue Chapon in Paris and, because we are soon on our way to New York City and have The Big Apple on our brain, a still au courant architectural tour de force townhouse on the Upper East Side. The townhouse, brought to our attention in an early November (2011) article in the Wall Street Journal by well-connected real estate journalist Josh Barbanel, was designed in 1966 by dexterous Brutalist architect Paul Rudolph, long owned by members of the global glitterati, and currently listed with a prodigious (but hardly unheard of) price tag of $38,500,000.

Sited mid-block on a leafy stretch of East 63rd Street between Park and Lexington Avenues, the aggressively contemporary 4-story Rudolph-designed residence was originally commissioned by a couple of high-style gentlemen named Alexander Hirsch and Turner Lewis. The Misters Lewis and Hirsch unloaded the very spare but not bare townhouse in the mid-1970s to Roy Frowick, the über-iconic fashion designer otherwise known as Halston who frequently entertained a decadent parade of hard-partying and high-flying famous folks like Bianca Jagger, Liza Minnelli, Elizabeth Taylor and Andy Warhol.

Mister Halston in turn sold the townhouse in 1990 to Italian industrialist Gianni Agnelli and German-born photographer Gunter Sachs, an avid astrology buff, international bon vivant, and scion to the Opel automobile dynasty. At some point Herr Sachs bought out Signore Agnelli's half-interest in the townhouse and lined the long and tall walls of the airy rooms with scads of candid photographs of his beau monde social circle and a contemporary art collection that could easily make a lesser collector of contemporary art puke with envy.

Who among the children can name three of the big name artists whose work can be seen in the listing photographs? Bueller? Bueller? Anyone? Bueller?

In addition to his art-filled townhouse in Manhattan, thrice married Mister Sachs, who spent a few years during the swinging sixties hitched to blond bomber turned reclusive animal rights activist Brigitte Bardot, owned a chalet in the hoity-toity Swiss ski resort of Gstaad. In May 2011, after diagnosed with what he described in a suicide note as a "hopeless illness," Mister Sachs put a gun to his own head. He further explained in his suicide note, "the loss of mental control over my life was an undignified condition, which I decided to counter decisively."

Take a moment to absorb that iffin you need to...

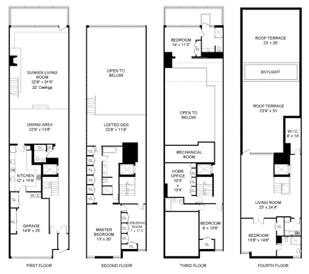
Moving along now, the Hirsch-Lewis/Halston/Agnelli-Sachs/Sachs townhouse appears as an electric shock of steel and smoked glass on an otherwise fairly staid and mostly featureless block of dignified (if ho-hum) brick buildings. However, the first thing an automobile owning New Yorker might notice about the house is not the meticulously taut and rather severe architecture of the facade but the curb cut and private garage, a very special sort of rare, hideously expensive and insanely desirable luxury in a city piled high with every kind of very rare and hideously expensive luxury. The floor plan included with online listing and marketing materials shows the garage, just spacious enough to accommodate one fairly large automobile, includes a wall of closet storage, a washer and dryer and two direct entrances the house, one to the foyer and the other to the decent sized and not doubt well-equipped but isolated and windowless kitchen.

Listing information doesn't indicate the size of the townhouse–earlier reports on the house state it's around 10,000 square feet–but does show there are a total of 4 bedrooms, 4.5 bathrooms, 3 living rooms on 3 floors, 2 kitchens, one elevator that stops on all 4 floors, one nearly hidden office, and an (approximately) 1,600 square foot roof terrace.

The front door opens into a long foyer/gallery with charcoal-colored slate flooring and art gallery white walls lined with dozens of identically matted and framed black and white photographs (above). A death defying floating staircase constructed primarily of steel offers no handrail for the aged, inform or drunk and switches back up to the townhouse's upper levels. The long entrance gallery narrows as it passes the elevator, laughably small coat closet, and discreetly located powder pooper before it explodes open into a cavernous, multi-level, living/dining room with a gasp-producing 32-foot high ceiling with massive sky light.

The slate tile floors under foot in the dining area give way to long strips of polished oak floors in the living room that includes a fireplace flanked by a deep niche where open are shelves lined with vintage camera equipment and Campbell's soup cans and various other Warholian things. A towering wall of glass gives way to a compact but high-impact bamboo garden. A second, even more dramatic floating staircase ascends to a loft/den that overlooks the living room and wraps around to the rear of the residence to the first (and least private) of three (smallish) guest bedrooms that each have somewhat limited closet space but an attached bathroom.

The second floor, street facing master suite (above, top) has soaring double-height ceiling, a 20-foot(ish) long corridor lined on one side with closets, and a long (and unfortunately windowless) bathroom (not shown in listing photos). A connected but separate closet-lined dressing room also has direct access to the elevator/stair hall, a well-conceived utility that means hair stylists, personal shoppers, and Keiko the mani-pedi gal need not enter the owner's most intimate chamber in order to do their bizness and work their various magics on the home's owner.

A spacious casual living room on the top floor includes a free-standing bar, wee (windowless) kitchenette, a large walk-in storage closet, and a wide floor-to-ceiling window and solid full-height door that gives way to the roof terrace, a vast (if not particularly private) expanse of outdoor space far larger than the interior area of many if not most Manhattan apartments. We love the collage-style collection of personal photographs that make a complex visual pattern on the rear wall but we think the room would benefit substantially from a pitched ceiling and/or sky light and a large, hand-woven silk rug placed under the main sitting area near to the windows.


Some of the more traditional townhouses in the immediate area are owned, as per property records, by big-living folks like Diandra Douglas–she's Michael's ex-wife, film producer Barbara Broccoli–she's Cubby's daughter, Daisy Prince–she's Hal's daughter, the government of Bulgaria, and Andrew Cogan–he's the director of Knoll who lives in a 19th century townhouse with an insane, thoroughly modern masonry screen facade designed and added in 1956 by architect Edward Durrell Stone. 

listing photos and floor plan: Corcoran