SELLER: Annie Leibovitz
LOCATION: New York City, NY
PRICE: $29,900,000
SIZE: 10,200 square feet
YOUR MAMAS NOTES: After failing to sell at when it was listed in December 2012 for $33 million, celebrity photographer Annie Leibovitz has re-listed her townhouse compound in the heart of New York City's West Village, as was first reported by the peeps at Luxury Listings NYC (via The Real Deal), with a new photographs, previously unseen floor plans, and much lower $29.9 million price tag.
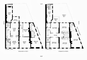
Property records show Miz Leibovitz acquired the larger of the two townhouses for $4.15 million in 2002 and the next year shelled out another $1.87 million for the smaller, wedge shaped townhouse that that's attached but, according to our interpretation of the floor plans now included with digital marketing materials, remains otherwise separate from the larger residence.
Listing details show the entire urban compound spans roughly 10,200 square feet and has been meticulously renovated and restored with all new plumbing and electrical systems, original stoops and doors, and more than 70 new landmark-approved wooden windows.
The smaller, wedge shaped townhouse, according to Your Mama's read of the floor plan, has a private entrance, a combination living/dining/kitchen with fireplace, a windowless basement, a bedroom (with fireplace) and hall bathroom on the second floor and another, larger bedroom on the third floor, also with fireplace.
The larger, 40-foot wide townhouse appears to Your Mama to once have been two separate townhouses and also appears to only be connected down in the sub-basement and up on the top level by a wide, sky-lit corridor. We counted seven bedrooms and 4.5 bathrooms plus staff bedroom in the basement and a self-contained two story guest house with one more bedroom, another bathroom, a kitchenette, and two fireplaces.
The larger townhouse also two forty-foot long loft-like living and dining rooms, each with two fireplaces, a small but expensively equipped kitchen with stainless steel cabinetry and a built-in banquette, a second floor library, two laundry rooms—one in the basement the other on the top floor, at least 10 fireplaces—although we have no idea how many of them remain functional, and way down in the sub-basement, a handful of walk-in storage closets and a separate, walk-in safe.
The commodious master suite is complete with bedroom and sitting room—both with fireplaces, an adjoining office, several closets and loads of built-ins, and, finally, a compact but well outfitted bathroom with a street-facing window.
As far as Your Mama's research shows, Miz Leibovitz still owns a 200-ish acre country spread in Rhinebeck, NY.
listing photos and floor plan: Corcoran